ReRender

大學,
生態未來主義
原始圖片
Source Image
上傳於
生成圖片(1088x768)
source
1.68%
Result Images
Result Images
Result Images

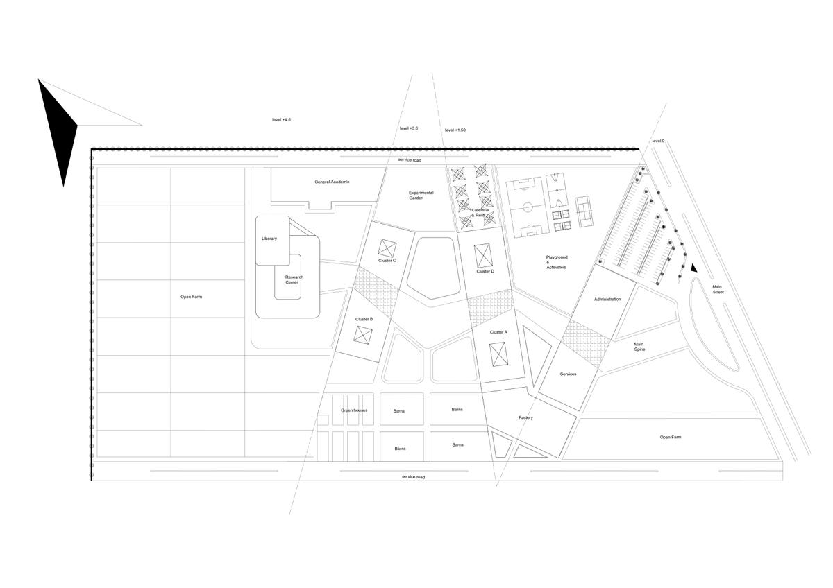
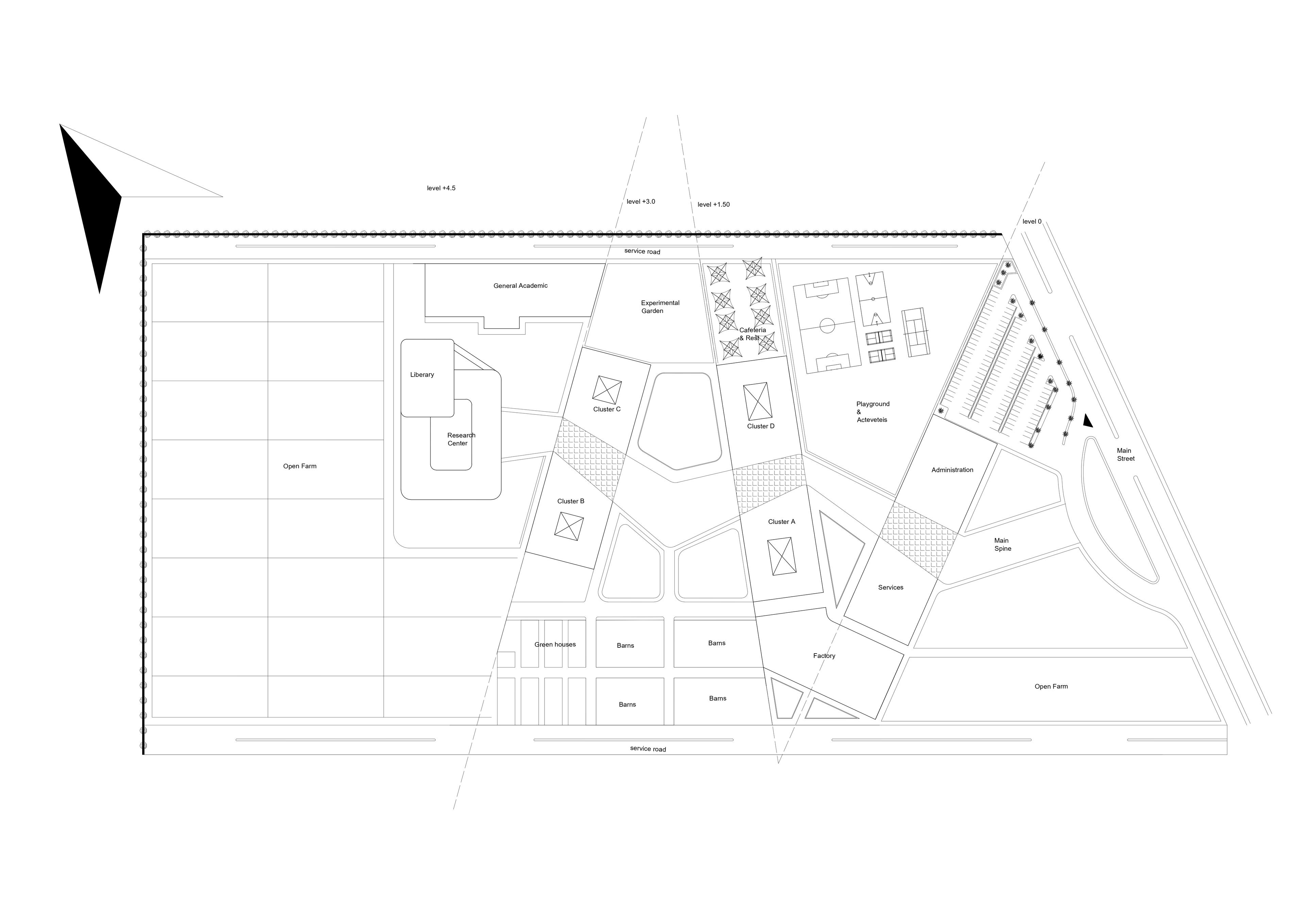
An incredibly lifelike, richly detailed, photorealistic 2D master plan rendering of an Agricultural Faculty campus, captured as if viewed from directly overhead at midday under a clear spring sky. The scene is illuminated by even, shadow-less light, creating a clear and functional atmosphere, characteristic of a design-focused photograph of a modern, eco-futuristic university campus. The composition emphasizes precise architectural outlines in white against a clean white background, with landscape elements rendered in muted greens and beige, and circulation paths in light grey. The "Main Spine" is clearly defined as the central pedestrian axis, featuring shaded seating areas, soft landscape pockets bursting with varied foliage, strategically placed trees providing dappled texture, simple benches, and a light paving texture. A prominent skylight ribbon, rendered with a subtle highlight and defined lighting and shading around its exact shape, runs along this spine, signifying a key architectural feature. The entrance plaza at the east edge of the spine is meticulously designed, presenting a clear arrival sequence with ample shading, comfortable seating, and abundant landscape elements. Detailed soft and hardscaping is integrated between the academic clusters (A, B, C, and D), transforming unoccupied spaces into vibrant student gathering areas, outdoor study terraces with subtle plazas, and fully realized sports pockets and a recreational playground. The "Open Farm" areas, including greenhouses, barns, a factory, and cultivated fields, are depicted with realistic soil textures and field patterns, all precisely maintained their original footprints and positions. The overall perspective is a clean, accurate, and realistic top-down view, prioritizing clarity of spatial organization and landscape design within a countryside university setting.


Use the extensionSketchUp
Follow usInstagramYouTubeLinkedIn
Join the discussionReddit