ReRender

風格參考
原始圖片
Source Image
上傳於
生成圖片(1088x768)
source
0.12%
Result Images
Result Images
angle

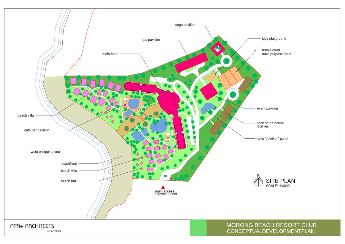
An aerial, high-angle, floorplan-style photograph of the Morong Beach Resort Club development, showcasing its conceptual design. The scene is brightly illuminated, as if taken on a clear, sunny day, highlighting the vibrant colors of the resort's planned structures and landscaping under a pale blue sky. Captured with a wide-angle lens, the photograph presents a comprehensive overview of the resort's layout situated along the West Philippine Sea coastline. The clear, turquoise waters of the sea gently meet a sandy beachfront, bordered by several "beach villas" depicted as neat, pink rectangular structures. Further inland, a winding path leads to the "main hotel," a larger cluster of bright pink buildings, and a "cafe bar pavilion." Within the resort grounds, lush green landscaping dotted with trees encloses various amenities, including swimming pools shown as irregular blue shapes, a "spa pavilion," a pink "yoga pavilion," an "event pavilion" in orange, a "kids playground," and tennis/multi-purpose courts. The detailed plan also indicates "back of the house facilities" in a muted brown and a notable "turtle 'pawikan' pond." The composition is meticulously organized, with clear delineation between the natural elements like the sea and greenery, and the man-made structures,


Use the extensionSketchUp
Follow usInstagramYouTubeLinkedIn
Join the discussionReddit